Über Sjöholmen

Sjöholmen

Sjöholmen ist ein traditionelles eingeschossiges Haus, das unter anderem mit Walmdach erhältlich ist. Der herausragende Giebel über dem Eingang, mit einem runden Fenster, sorgt für das gewisse Extra und bietet Schutz vor Wind und Wetter. Zusammen mit der zum Garten im Winkel gerichteten Fassade schafft der Giebel ein lebhaftes und gut ausbalanciertes
Äußeres.

Sjöhölmen ist ein moderner Bungalow, mit einem aufwendig konstruierten Walmdach, im New-England-Style. Das an Vorder- und Rückfront vorgezogene Satteldach, mit seinen runden Fenstern, betont die architektonische Mitte des Hauses.

Erklärung der technischen Daten

Alle angegebenen Abmessungen entsprechen den schwedischen Normen. Ihr Verkäufer informiert Sie darüber, was in Deutschland anders ist.

Nutzfläche

Dies ist die gesamte Fläche innerhalb der Außenwände in allen Geschossen. Zur Nutzfläche gehören auch Flächen zum Beispiel für Küchenschränke, Kleiderschränke und Warmwasserbereiter.

Grundfläche

Die Fläche, die das Haus auf dem Grundstück einnimmt. Dabei handelt es sich im Allgemeinen um eine Projektion des Hauses von oben. Balkone werden mit zur Grundfläche gerechnet, wenn deren Unterseite weniger als 3 m weit auf das Grundstück ragt. Die Grundfläche ist ein wichtiger Wert, der angibt, in welchem Umfang ein Grundstück bebaut werden darf. Dieser Wert ist dem Bebauungsplan zu entnehmen.

Gebäudehöhe

Die Höhe von der mittleren Ebene des Grundstückes bis zum Schnittpunkt zwischen der Fassadenfläche und einer Ebene, die mit einer Neigung von 45° zum Gebäude hin das Dach des Gebäudes berührt. Meist stellt die Fassade zur Straßenseite hin die Berechnungsgrundlage dar. Die Gebäudehöhe ist ein schwieriges Konzept; sprechen Sie im Falle von Unklarheiten gern mit unseren Verkäufern.

Zimmeranzahl

Damit ein Raum als „Zimmer“ zählt, muss er bewohnbar sein und dazu eine Fläche von mindestens 7 m² und ein Fenster haben. Bad und Waschküche gelten in einem Haus nicht als Zimmer, und die Küche wird stets separat genannt.

Kontaktieren Sie uns

Beratungsgespräch vereinbaren

Ein erster Schritt auf dem Weg zum neuen Haus kann ein Gespräch mit einem Eksjöhus-Vertriebspartner sein. Sie können einen Beratungstermin unabhängig davon vereinbaren, ob Sie bereits ein bebaubares Grundstück haben oder nicht. Unsere Beratung ist kostenlos und unverbindlich. Füllen Sie das Formular aus und wir melden uns baldmöglichst bei Ihnen.

Kontaktieren Sie uns

Preisanfrage Sjöholmen

Ein Haus zu einem Festpreis anzubieten ist schwierig. Die Gesamtkosten sind davon abhängig, wo Sie bauen wollen und wie das Grundstück aussieht. Auch die Preise von Handwerkern und Bauunternehmen unterscheiden sich von Region zu Region. Wenn Sie das Formular ausfüllen, können wir Ihnen zumindest eine preisliche Größenordnung für ein Haus nach Ihren Wünschen nennen.

Traditionellt enplanshus med valmat tak

Sjöholmen

Nutzfläche
140 m²
Geschosse
1
Zimmeranzahl
5 Zimmer und Küche

    Haben Sie bereits ein Grundstück?

    Wir verwenden Ihre Daten ausschließlich gemäß unserer Datenschutzerklärung.

    Vielen Dank für Ihre Anfrage!

    Ihre Preisanfrage wurde versendet.

    Das nächstgelegene Eksjöhus-Büro wird sich in Kürze mit Ihnen in Verbindung setzen.

    Haben Sie schon unseren inspirierenden Katalog bestellt?

    Katalog anfordern

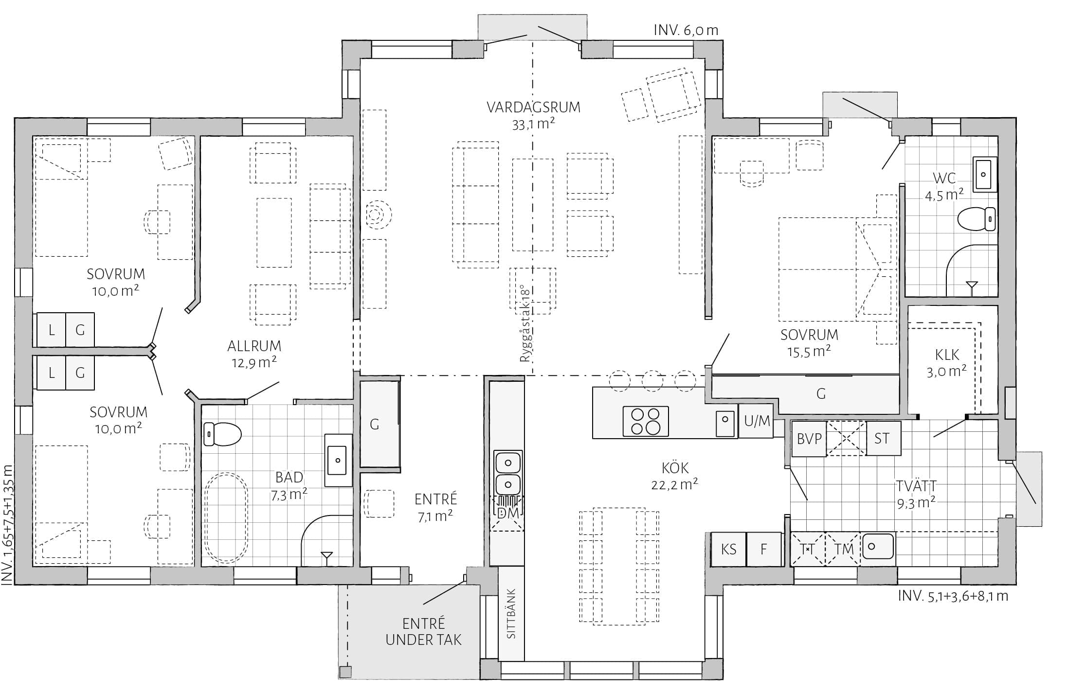
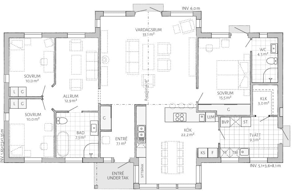
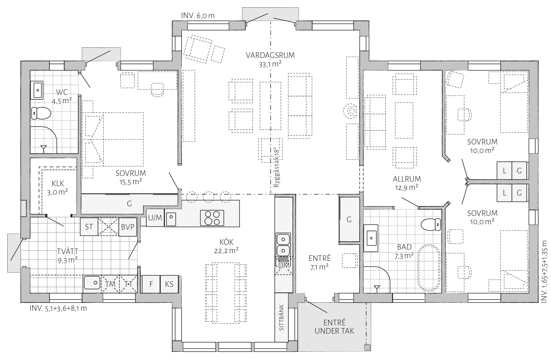
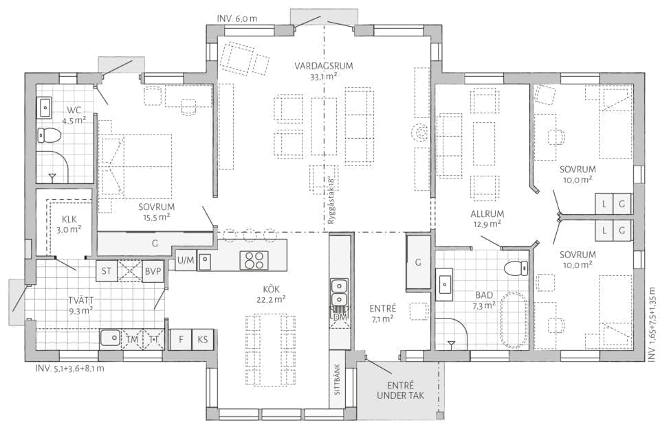
    Sjöholmen

    Grundriss

    3-D-Modell

    Betrachten Sie Sjöholmen von allen Seiten

    Camilla Jernberg

    Was sich der Architekt bei Sjöholmen gedacht hat

    Camilla Jernberg

    Betritt man diesen Bungalow begegnet man dem einfallenden Licht des geräumigen Wohnzimmers. Die Kathedrakdecke und die riesigen Fensterflächen bilden das Herz des Hauses. Die Küche bietet viel Platz und Arbeitsfläche für die Bewirtung zahlreicher Gäste. Der im Anschluss liegende Hauswirtschaftsraum beherbergt die Technik und bietet Stauraum. Vom Elternschlafzimmer, mit eigener Duschbad, gelangt man direkt auf die Terrasse. Der gegenüberliegende Kindertrakt bietet neben dem eigenen Bad noch einen Gemeinschaftsraum.

    Fotos der Häuser von Kunden

    Lassen Sie sich von Häusern Sjöholmen unserer Kunden inspirieren

    Taggen Sie Ihre Bilder mit @eksjohus oder mit #mittEksjöhus, wenn Sie Lust haben, als eine unserer Inspirationsquellen ausgewählt zu werden.

    Wird geladen …

    Individuelle Gestaltung

    Finden Sie heraus, welches Haus und welcher Stil zu Ihnen passen

    Der kürzeste Weg zu Ihrem Traumhaus: Wählen Sie einen Haustyp oder eine Stilrichtung aus und schauen Sie sich dann an, welche Optionen es innerhalb der gewählten Kategorie gibt.

    Wird geladen …

    Kontaktiere mich

    Bitte nehmen Sie Kontakt mit mir auf

    Füllen Sie das Formular aus und ich werde antworten, sobald ich die Gelegenheit dazu habe. Wenn Sie lieber anrufen möchten, meine Nummer ist unten.

    Mit freundlichen Grüßen

      Tack för din förfrågan!

      Din fråga är skickad

      Inom kort kommer jag att ta kontakt med dig.