Prio

Über Prio 164 Traditionell

Prio 164 - klassisches 1,5-geschossiges Haus mit cleverer Raumaufteilung und vier großen Schlafzimmern

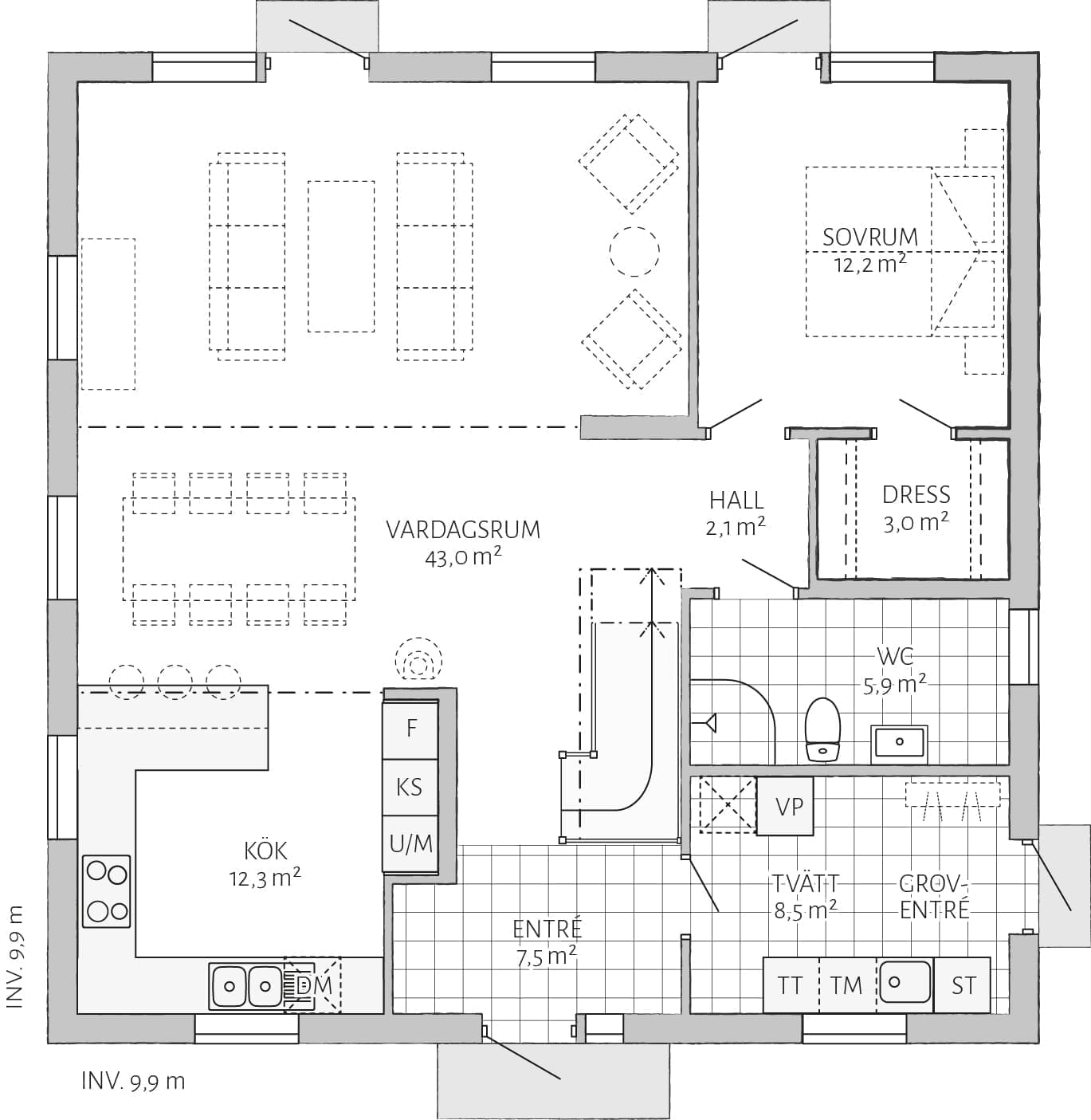
Mit Sprossenfenstern, weißen Eckpfosten und einem wunderschönen Eingang, der die Vorderseite ziert, strahlt Prio 164 Traditionell Beständigkeit aus und spiegelt das schwedische Architekturerbe wider. Beim Betreten des Hauses durch die Eingangstür spürt man, wie sich das Haus öffnet. Das Erdgeschoss verzichtet auf Flure, so dass jeder Quadratmeter Fläche genutzt und bewohnt werden kann. Der flexible Grundrisses im Erdgeschoss gibt Ihnen die Möglichkeit, das Wohnzimmer abzuteilen, um bei Bedarf ein zusätzliches Schlafzimmer zu schaffen.

Erklärung der technischen Daten

Alle angegebenen Abmessungen entsprechen den schwedischen Normen. Ihr Verkäufer informiert Sie darüber, was in Deutschland anders ist.

Nutzfläche

Dies ist die gesamte Fläche innerhalb der Außenwände in allen Geschossen. Zur Nutzfläche gehören auch Flächen zum Beispiel für Küchenschränke, Kleiderschränke und Warmwasserbereiter.

Grundfläche

Die Fläche, die das Haus auf dem Grundstück einnimmt. Dabei handelt es sich im Allgemeinen um eine Projektion des Hauses von oben. Balkone werden mit zur Grundfläche gerechnet, wenn deren Unterseite weniger als 3 m weit auf das Grundstück ragt. Die Grundfläche ist ein wichtiger Wert, der angibt, in welchem Umfang ein Grundstück bebaut werden darf. Dieser Wert ist dem Bebauungsplan zu entnehmen.

Gebäudehöhe

Die Höhe von der mittleren Ebene des Grundstückes bis zum Schnittpunkt zwischen der Fassadenfläche und einer Ebene, die mit einer Neigung von 45° zum Gebäude hin das Dach des Gebäudes berührt. Meist stellt die Fassade zur Straßenseite hin die Berechnungsgrundlage dar. Die Gebäudehöhe ist ein schwieriges Konzept; sprechen Sie im Falle von Unklarheiten gern mit unseren Verkäufern.

Zimmeranzahl

Damit ein Raum als „Zimmer“ zählt, muss er bewohnbar sein und dazu eine Fläche von mindestens 7 m² und ein Fenster haben. Bad und Waschküche gelten in einem Haus nicht als Zimmer, und die Küche wird stets separat genannt.

Kontaktieren Sie uns

Beratungsgespräch vereinbaren

Ein erster Schritt auf dem Weg zum neuen Haus kann ein Gespräch mit einem Eksjöhus-Vertriebspartner sein. Sie können einen Beratungstermin unabhängig davon vereinbaren, ob Sie bereits ein bebaubares Grundstück haben oder nicht. Unsere Beratung ist kostenlos und unverbindlich. Füllen Sie das Formular aus und wir melden uns baldmöglichst bei Ihnen.

Kontaktieren Sie uns

Preisanfrage Prio 164 Traditionell

Ein Haus zu einem Festpreis anzubieten ist schwierig. Die Gesamtkosten sind davon abhängig, wo Sie bauen wollen und wie das Grundstück aussieht. Auch die Preise von Handwerkern und Bauunternehmen unterscheiden sich von Region zu Region. Wenn Sie das Formular ausfüllen, können wir Ihnen zumindest eine preisliche Größenordnung für ein Haus nach Ihren Wünschen nennen.

Prio 164 traditionell framsida grå

Prio 164 Traditionell

Nutzfläche
164 m²
Geschosse
1,5
Zimmeranzahl
6 Zimmer und Küche
Serien
Prio

    Haben Sie bereits ein Grundstück?

    Wir verwenden Ihre Daten ausschließlich gemäß unserer Datenschutzerklärung.

    Vielen Dank für Ihre Anfrage!

    Ihre Preisanfrage wurde versendet.

    Das nächstgelegene Eksjöhus-Büro wird sich in Kürze mit Ihnen in Verbindung setzen.

    Haben Sie schon unseren inspirierenden Katalog bestellt?

    Katalog anfordern

    Prio 164 Traditionell

    Grundriss

    3-D-Modell

    Betrachten Sie Prio 164 Traditionell von allen Seiten

    Anund Petri

    Was sich der Architekt bei Prio 164 Traditionell gedacht hat

    Anund Petri

    Ein Haus mit harmonischen Räumen

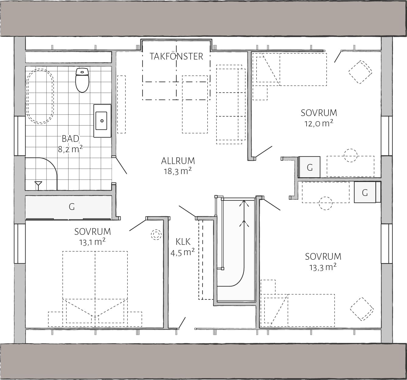
    Wenn Sie durch die Eingangstür von Prio 164 Traditionell treten, spüren Sie, wie sich das Haus öffnet. Das Erdgeschoss hat keine Flure, so dass Sie jeden Quadratmeter nutzen und auskosten können. Obwohl die Küche etwas abseits vom Wohnzimmer liegt, scheinen die beiden Räume miteinander verbunden. Im Eingangsbereich befinden sich auch ein großes Schlafzimmer mit Ankleideraum und ein Badezimmer. Dank der Raumplanung im Erdgeschoss können Sie das Wohnzimmer abteilen, um ein weiteres Schlafzimmer zu erhalten. Das ist eine gute Option, wenn Sie schnell einziehen und die obere Etage später einrichten wollen.

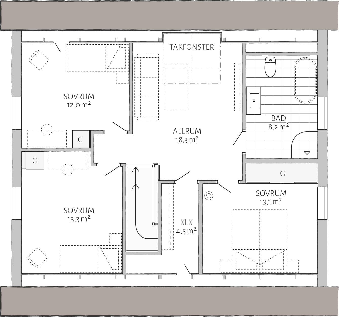
    Die zentrale Platzierung der Treppe ist ein Markenzeichen von Eksjöhus. Oben angelangt, werden Sie von einem Aufenthaltsraum mit Dachfenster empfangen. Für uns Schweden ist das perfekt, denn wir brauchen so viel Sonnenlicht wie möglich. Im Obergeschoss von Prio 164 Traditionell gibt es drei große Schlafzimmer, wobei eines in der Nähe von Ankleideraum und WC liegt. Vielleicht wird dieses Ihr Elternschlafzimmer?

    Individuelle Gestaltung

    Finden Sie heraus, welches Haus und welcher Stil zu Ihnen passen

    Der kürzeste Weg zu Ihrem Traumhaus: Wählen Sie einen Haustyp oder eine Stilrichtung aus und schauen Sie sich dann an, welche Optionen es innerhalb der gewählten Kategorie gibt.

    Wird geladen …

    Kontaktiere mich

    Bitte nehmen Sie Kontakt mit mir auf

    Füllen Sie das Formular aus und ich werde antworten, sobald ich die Gelegenheit dazu habe. Wenn Sie lieber anrufen möchten, meine Nummer ist unten.

    Mit freundlichen Grüßen

      Tack för din förfrågan!

      Din fråga är skickad

      Inom kort kommer jag att ta kontakt med dig.