Prio

Über Prio 143 Industriell

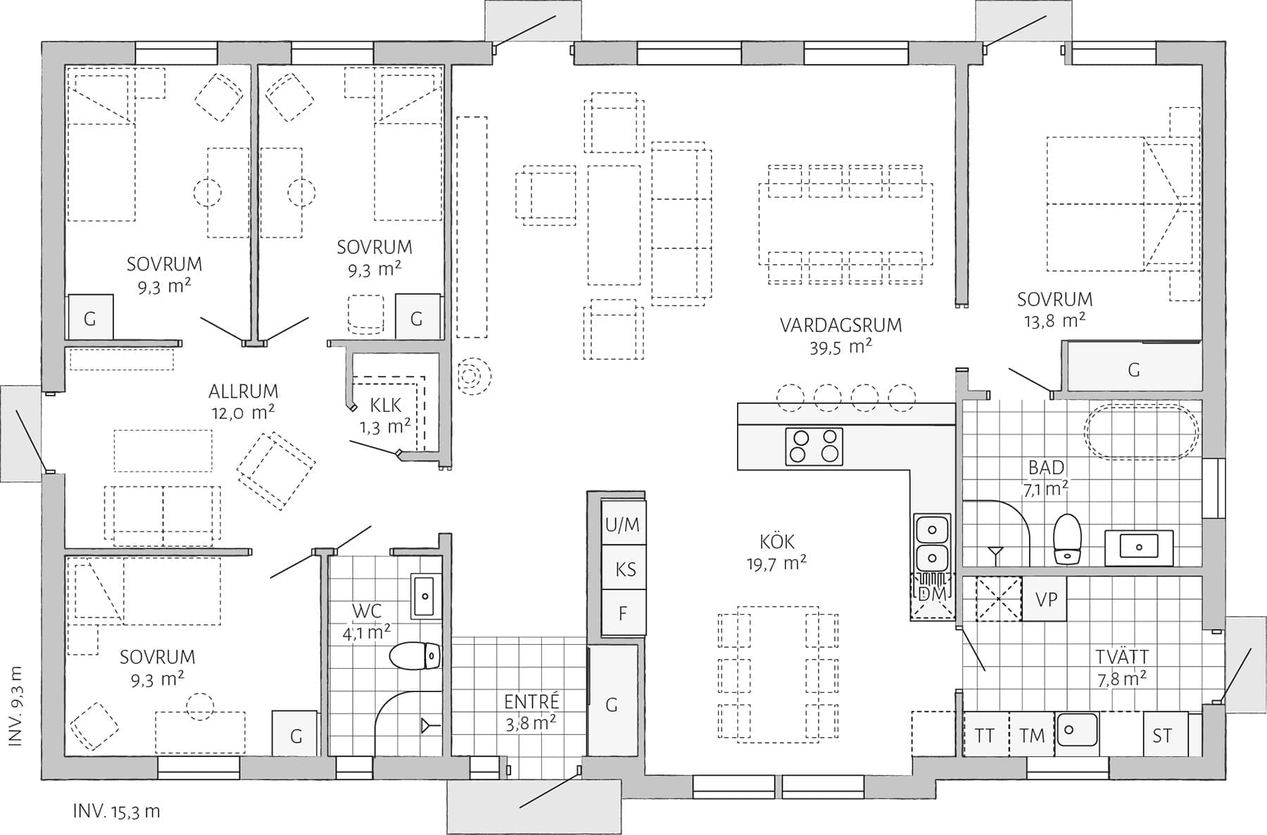
Prio 143 Industriell – stilvolles Einfamilienhaus mit vier Schlafzimmern und offenem Grundriss

Das klare Design und die schmale Dachtraufe verleihen Prio 143 Industriell einen einzigartigen Charakter. Mit einer Formensprache, die an Künstlerateliers und Stadthäuser erinnert, ist es für Stadt und Land gleichermaßen geeignet. Prio 143 ist nicht ohne Grund unser meistverkauftes Haus in Schweden: Hier wird jeder Quadratmeter optimal genutzt, und der Grundriss ist sowohl für größere als auch für kleinere Familien geeignet. Die vier Schlafzimmer befinden sich jeweils an den Enden des Hauses. Zwei davon sind für Erwachsene, die anderen zwei für Kinder oder Gäste gedacht. Dazwischen laden das Wohnzimmer und die integrierte Küche zu geselligem Beisammensein ein.

Erklärung der technischen Daten

Alle angegebenen Abmessungen entsprechen den schwedischen Normen. Ihr Verkäufer informiert Sie darüber, was in Deutschland anders ist.

Nutzfläche

Dies ist die gesamte Fläche innerhalb der Außenwände in allen Geschossen. Zur Nutzfläche gehören auch Flächen zum Beispiel für Küchenschränke, Kleiderschränke und Warmwasserbereiter.

Grundfläche

Die Fläche, die das Haus auf dem Grundstück einnimmt. Dabei handelt es sich im Allgemeinen um eine Projektion des Hauses von oben. Balkone werden mit zur Grundfläche gerechnet, wenn deren Unterseite weniger als 3 m weit auf das Grundstück ragt. Die Grundfläche ist ein wichtiger Wert, der angibt, in welchem Umfang ein Grundstück bebaut werden darf. Dieser Wert ist dem Bebauungsplan zu entnehmen.

Gebäudehöhe

Die Höhe von der mittleren Ebene des Grundstückes bis zum Schnittpunkt zwischen der Fassadenfläche und einer Ebene, die mit einer Neigung von 45° zum Gebäude hin das Dach des Gebäudes berührt. Meist stellt die Fassade zur Straßenseite hin die Berechnungsgrundlage dar. Die Gebäudehöhe ist ein schwieriges Konzept; sprechen Sie im Falle von Unklarheiten gern mit unseren Verkäufern.

Zimmeranzahl

Damit ein Raum als „Zimmer“ zählt, muss er bewohnbar sein und dazu eine Fläche von mindestens 7 m² und ein Fenster haben. Bad und Waschküche gelten in einem Haus nicht als Zimmer, und die Küche wird stets separat genannt.

Kontaktieren Sie uns

Beratungsgespräch vereinbaren

Ein erster Schritt auf dem Weg zum neuen Haus kann ein Gespräch mit einem Eksjöhus-Vertriebspartner sein. Sie können einen Beratungstermin unabhängig davon vereinbaren, ob Sie bereits ein bebaubares Grundstück haben oder nicht. Unsere Beratung ist kostenlos und unverbindlich. Füllen Sie das Formular aus und wir melden uns baldmöglichst bei Ihnen.

Kontaktieren Sie uns

Preisanfrage Prio 143 Industriell

Ein Haus zu einem Festpreis anzubieten ist schwierig. Die Gesamtkosten sind davon abhängig, wo Sie bauen wollen und wie das Grundstück aussieht. Auch die Preise von Handwerkern und Bauunternehmen unterscheiden sich von Region zu Region. Wenn Sie das Formular ausfüllen, können wir Ihnen zumindest eine preisliche Größenordnung für ein Haus nach Ihren Wünschen nennen.

Prio 143 industriell framsida beige

Prio 143 Industriell

Nutzfläche
143 m²
Geschosse
1
Zimmeranzahl
6 Zimmer und Küche
Serien
Prio

    Haben Sie bereits ein Grundstück?

    Wir verwenden Ihre Daten ausschließlich gemäß unserer Datenschutzerklärung.

    Vielen Dank für Ihre Anfrage!

    Ihre Preisanfrage wurde versendet.

    Das nächstgelegene Eksjöhus-Büro wird sich in Kürze mit Ihnen in Verbindung setzen.

    Haben Sie schon unseren inspirierenden Katalog bestellt?

    Katalog anfordern

    Prio 143 Industriell

    Grundriss

    Von innen

    Betrachten Sie Prio 143 Industriell von innen

    3-D-Modell

    Betrachten Sie Prio 143 Industriell von allen Seiten

    Johan Nycroft

    Was sich der Architekt bei Prio 143 Industriell gedacht hat

    Johan Nycroft, Chefsarkitekt, Eksjöhus

    Ein effizientes Haus mit einem schönen Erker

    Möchten Sie ein effizientes Haus, in dem jeder Quadratmeter eine Funktion hat? Und ein Haus mit einem ansprechenden Erker am Eingang? Dann ist Prio 143 das Haus für Sie. Wenn Sie eintreten, sehen Sie das Wohnzimmer und erhaschen einen Blick auf den Garten auf der Rückseite des Hauses. Die Schiebetürenschränke im Eingangsbereich bieten viel Platz für Jacken, Schuhe und Taschen.

    Das Wohnzimmer und die Küche sind zentral platziert und die Gesamtfläche beträgt 59,2 Quadratmeter. Hier haben sowohl Familie, Freunde als auch Verwandte Platz zum Zusammensein. Die vier Schlafzimmer des Hauses sind in zwei Bereiche aufgeteilt, einen für Erwachsene und einen für Kinder oder Jugendliche auf beiden Seiten des Wohnzimmers und der Küche. Wenn die Spielzeuge in Richtung Wohnzimmer streifen, können Sie schnell eine Tür zu den Kinderzimmern sowie ihrem eigenen Aufenthaltsraum und eigenem WC schließen. Im Elternbereich befindet sich das Badezimmer „ensuite“, was luxuriös und angenehm ist.

    Fotos der Häuser von Kunden

    Lassen Sie sich von Häusern Prio 143 Industriell unserer Kunden inspirieren

    Taggen Sie Ihre Bilder mit @eksjohus oder mit #mittEksjöhus, wenn Sie Lust haben, als eine unserer Inspirationsquellen ausgewählt zu werden.

    Wird geladen …

    Individuelle Gestaltung

    Finden Sie heraus, welches Haus und welcher Stil zu Ihnen passen

    Der kürzeste Weg zu Ihrem Traumhaus: Wählen Sie einen Haustyp oder eine Stilrichtung aus und schauen Sie sich dann an, welche Optionen es innerhalb der gewählten Kategorie gibt.

    Wird geladen …

    Kontaktiere mich

    Bitte nehmen Sie Kontakt mit mir auf

    Füllen Sie das Formular aus und ich werde antworten, sobald ich die Gelegenheit dazu habe. Wenn Sie lieber anrufen möchten, meine Nummer ist unten.

    Mit freundlichen Grüßen

      Tack för din förfrågan!

      Din fråga är skickad

      Inom kort kommer jag att ta kontakt med dig.