Prio

Über Prio 141 Modern

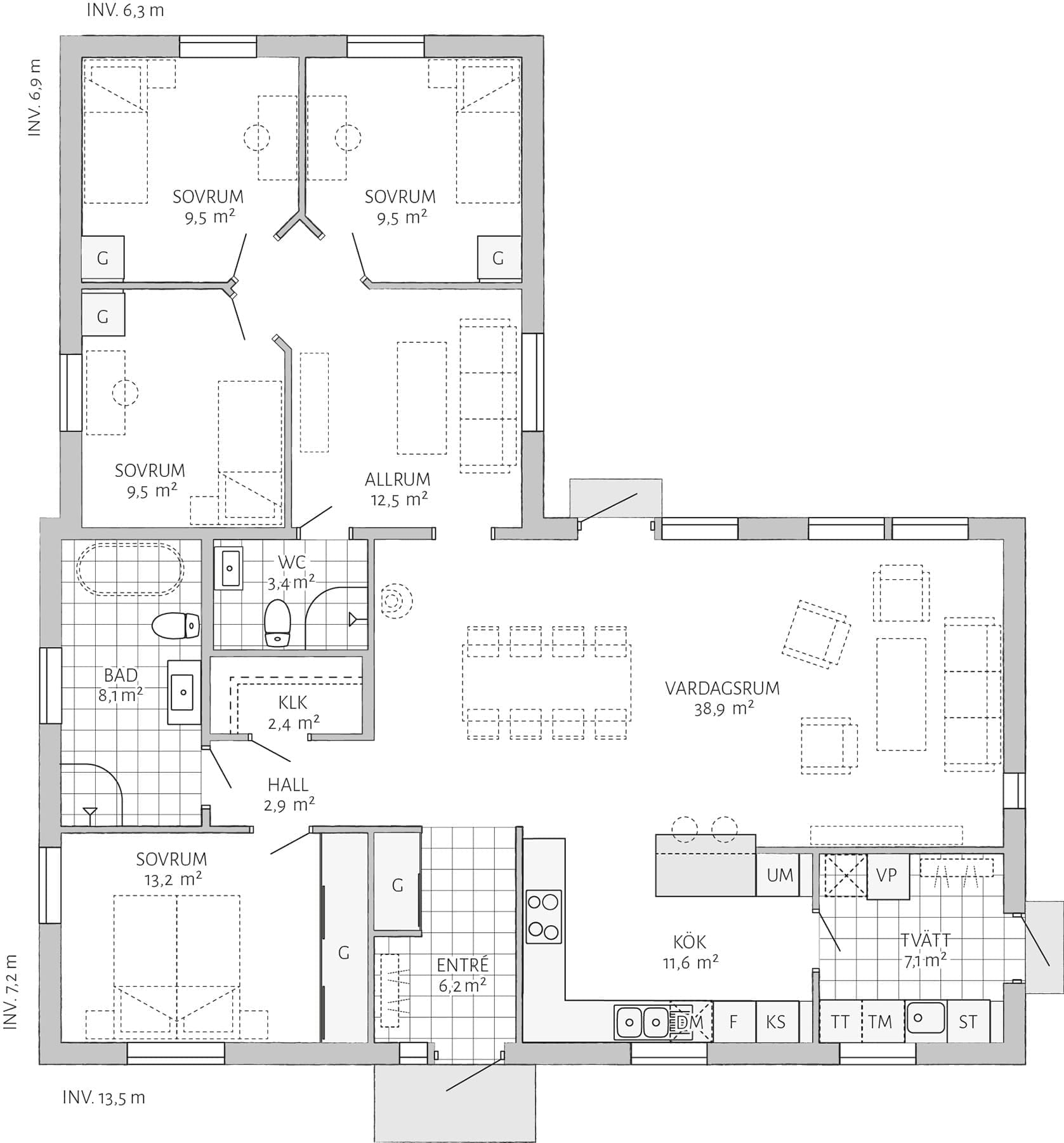
Prio 141 Modern – ein modernes eingeschossiges Winkelhaus

Stilvoll, elegant und einladend: Prio 141 Modern passt in jede Umgebung. Prio 141 ist ein Winkelhaus, bei dem alle Flächen genutzt werden können. Erleben Sie das wunderbare Raumgefühl zwischen Küche und Wohnzimmer und freuen Sie sich auf die geschützte, atmosphärische Terrasse, die auf der Rückseite des Hauses durch die Winkelbauweise entsteht. Mit Waschküche, mehreren Schlafzimmern und reichlich Stauraum ist genug Platz für alles, was Familien brauchen.

Erklärung der technischen Daten

Alle angegebenen Abmessungen entsprechen den schwedischen Normen. Ihr Verkäufer informiert Sie darüber, was in Deutschland anders ist.

Nutzfläche

Dies ist die gesamte Fläche innerhalb der Außenwände in allen Geschossen. Zur Nutzfläche gehören auch Flächen zum Beispiel für Küchenschränke, Kleiderschränke und Warmwasserbereiter.

Grundfläche

Die Fläche, die das Haus auf dem Grundstück einnimmt. Dabei handelt es sich im Allgemeinen um eine Projektion des Hauses von oben. Balkone werden mit zur Grundfläche gerechnet, wenn deren Unterseite weniger als 3 m weit auf das Grundstück ragt. Die Grundfläche ist ein wichtiger Wert, der angibt, in welchem Umfang ein Grundstück bebaut werden darf. Dieser Wert ist dem Bebauungsplan zu entnehmen.

Gebäudehöhe

Die Höhe von der mittleren Ebene des Grundstückes bis zum Schnittpunkt zwischen der Fassadenfläche und einer Ebene, die mit einer Neigung von 45° zum Gebäude hin das Dach des Gebäudes berührt. Meist stellt die Fassade zur Straßenseite hin die Berechnungsgrundlage dar. Die Gebäudehöhe ist ein schwieriges Konzept; sprechen Sie im Falle von Unklarheiten gern mit unseren Verkäufern.

Zimmeranzahl

Damit ein Raum als „Zimmer“ zählt, muss er bewohnbar sein und dazu eine Fläche von mindestens 7 m² und ein Fenster haben. Bad und Waschküche gelten in einem Haus nicht als Zimmer, und die Küche wird stets separat genannt.

Kontaktieren Sie uns

Beratungsgespräch vereinbaren

Ein erster Schritt auf dem Weg zum neuen Haus kann ein Gespräch mit einem Eksjöhus-Vertriebspartner sein. Sie können einen Beratungstermin unabhängig davon vereinbaren, ob Sie bereits ein bebaubares Grundstück haben oder nicht. Unsere Beratung ist kostenlos und unverbindlich. Füllen Sie das Formular aus und wir melden uns baldmöglichst bei Ihnen.

Kontaktieren Sie uns

Preisanfrage Prio 141 Modern

Ein Haus zu einem Festpreis anzubieten ist schwierig. Die Gesamtkosten sind davon abhängig, wo Sie bauen wollen und wie das Grundstück aussieht. Auch die Preise von Handwerkern und Bauunternehmen unterscheiden sich von Region zu Region. Wenn Sie das Formular ausfüllen, können wir Ihnen zumindest eine preisliche Größenordnung für ein Haus nach Ihren Wünschen nennen.

Prio 141 modern baksida vit

Prio 141 Modern

Nutzfläche
141 m²
Geschosse
1
Zimmeranzahl
6 Zimmer und Küche
Serien
Prio

    Haben Sie bereits ein Grundstück?

    Wir verwenden Ihre Daten ausschließlich gemäß unserer Datenschutzerklärung.

    Vielen Dank für Ihre Anfrage!

    Ihre Preisanfrage wurde versendet.

    Das nächstgelegene Eksjöhus-Büro wird sich in Kürze mit Ihnen in Verbindung setzen.

    Haben Sie schon unseren inspirierenden Katalog bestellt?

    Katalog anfordern

    Prio 141 Modern

    Grundriss

    Von innen

    Betrachten Sie Prio 141 Modern von innen

    3-D-Modell

    Betrachten Sie Prio 141 Modern von allen Seiten

    Frida Axhed

    Was sich der Architekt bei Prio 141 Modern gedacht hat

    Frida Axhed

    Ein Winkelhaus für Familien

    Suchen Sie nach einem Winkelhaus, in dem alle Räume genutzt werden können? Dann heißen wir Sie in Prio 141 Modern herzlich willkommen. Hier erstreckt sich der Grundriss in einem Winkel, wobei der eine Teil zum Kinderbereich werden kann. In der Küche haben Sie sowohl Blick auf die Vorderseite als auch auf die Rückseite des Hauses. Die Theke eignet sich perfekt für Frühstück und Feiern. Bei Prio 141 haben wir besonders darauf geachtet, dass die Kommunikation zwischen Küche und Wohnzimmer gut funktioniert. Denn hier verbringen viele Familien viel Zeit, sei es beim Essen, beim gemütlichen Beisammensein oder zum Erledigen der Hausaufgaben.

    In der Nähe des Eingangs befindet sich ein begehbarer Kleiderschrank, in dem die ganze Familie Jacken und Mäntel aufhängen aufhängen kann. Das geräumige Badezimmer eignet sich auch für Gäste, da es in der Nähe der gemeinschaftlich genutzten Räume liegt. Da Prio 141 ein Winkelhaus ist, können Sie zwischen den beiden Winkeln einen geschützten Außenbereich schaffen. Um eine gemütliche Atmosphäre zu schaffen, können Sie einen Kamin im Wohnzimmer einbauen lassen.

    Fotos der Häuser von Kunden

    Lassen Sie sich von Häusern Prio 141 Modern unserer Kunden inspirieren

    Taggen Sie Ihre Bilder mit @eksjohus oder mit #mittEksjöhus, wenn Sie Lust haben, als eine unserer Inspirationsquellen ausgewählt zu werden.

    Wird geladen …

    Individuelle Gestaltung

    Finden Sie heraus, welches Haus und welcher Stil zu Ihnen passen

    Der kürzeste Weg zu Ihrem Traumhaus: Wählen Sie einen Haustyp oder eine Stilrichtung aus und schauen Sie sich dann an, welche Optionen es innerhalb der gewählten Kategorie gibt.

    Wird geladen …

    Kontaktiere mich

    Bitte nehmen Sie Kontakt mit mir auf

    Füllen Sie das Formular aus und ich werde antworten, sobald ich die Gelegenheit dazu habe. Wenn Sie lieber anrufen möchten, meine Nummer ist unten.

    Mit freundlichen Grüßen

      Tack för din förfrågan!

      Din fråga är skickad

      Inom kort kommer jag att ta kontakt med dig.