Prio

Über Prio 129 Industriell

Prio 129 Industriell – schlichtes Einfamilienhaus für die kleine Familie

Klare Details und ein großzügiges Raumgefühl zeichnen Prio 129 Industriell aus. Mit einem Design, das an Künstlerateliers und Reihenhäuser erinnert, ist das Haus für Stadt und Land gleichermaßen geeignet. Prio 129 ist ideal für kleine Familien und für alle, die sich verkleinern möchten. Träumen Sie davon, weniger reinigen zu müssen, aber dennoch viel Platz für Treffen mit Ihren Liebsten zu haben? Dann passt dieses Haus zu Ihnen. Wenn Sie sich für ein Satteldach entscheiden, erzielen Sie in Wohnzimmer und Küche ein noch größeres Raumgefühl.

Erklärung der technischen Daten

Alle angegebenen Abmessungen entsprechen den schwedischen Normen. Ihr Verkäufer informiert Sie darüber, was in Deutschland anders ist.

Nutzfläche

Dies ist die gesamte Fläche innerhalb der Außenwände in allen Geschossen. Zur Nutzfläche gehören auch Flächen zum Beispiel für Küchenschränke, Kleiderschränke und Warmwasserbereiter.

Grundfläche

Die Fläche, die das Haus auf dem Grundstück einnimmt. Dabei handelt es sich im Allgemeinen um eine Projektion des Hauses von oben. Balkone werden mit zur Grundfläche gerechnet, wenn deren Unterseite weniger als 3 m weit auf das Grundstück ragt. Die Grundfläche ist ein wichtiger Wert, der angibt, in welchem Umfang ein Grundstück bebaut werden darf. Dieser Wert ist dem Bebauungsplan zu entnehmen.

Gebäudehöhe

Die Höhe von der mittleren Ebene des Grundstückes bis zum Schnittpunkt zwischen der Fassadenfläche und einer Ebene, die mit einer Neigung von 45° zum Gebäude hin das Dach des Gebäudes berührt. Meist stellt die Fassade zur Straßenseite hin die Berechnungsgrundlage dar. Die Gebäudehöhe ist ein schwieriges Konzept; sprechen Sie im Falle von Unklarheiten gern mit unseren Verkäufern.

Zimmeranzahl

Damit ein Raum als „Zimmer“ zählt, muss er bewohnbar sein und dazu eine Fläche von mindestens 7 m² und ein Fenster haben. Bad und Waschküche gelten in einem Haus nicht als Zimmer, und die Küche wird stets separat genannt.

Kontaktieren Sie uns

Beratungsgespräch vereinbaren

Ein erster Schritt auf dem Weg zum neuen Haus kann ein Gespräch mit einem Eksjöhus-Vertriebspartner sein. Sie können einen Beratungstermin unabhängig davon vereinbaren, ob Sie bereits ein bebaubares Grundstück haben oder nicht. Unsere Beratung ist kostenlos und unverbindlich. Füllen Sie das Formular aus und wir melden uns baldmöglichst bei Ihnen.

Kontaktieren Sie uns

Preisanfrage Prio 129 Industriell

Ein Haus zu einem Festpreis anzubieten ist schwierig. Die Gesamtkosten sind davon abhängig, wo Sie bauen wollen und wie das Grundstück aussieht. Auch die Preise von Handwerkern und Bauunternehmen unterscheiden sich von Region zu Region. Wenn Sie das Formular ausfüllen, können wir Ihnen zumindest eine preisliche Größenordnung für ein Haus nach Ihren Wünschen nennen.

Prio 129 industriell framsida beige

Prio 129 Industriell

Nutzfläche
129 m²
Geschosse
1
Zimmeranzahl
5 Zimmer und Küche
Serien
Prio

    Haben Sie bereits ein Grundstück?

    Wir verwenden Ihre Daten ausschließlich gemäß unserer Datenschutzerklärung.

    Vielen Dank für Ihre Anfrage!

    Ihre Preisanfrage wurde versendet.

    Das nächstgelegene Eksjöhus-Büro wird sich in Kürze mit Ihnen in Verbindung setzen.

    Haben Sie schon unseren inspirierenden Katalog bestellt?

    Katalog anfordern

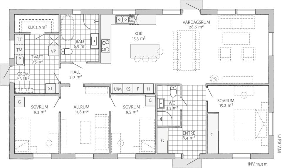
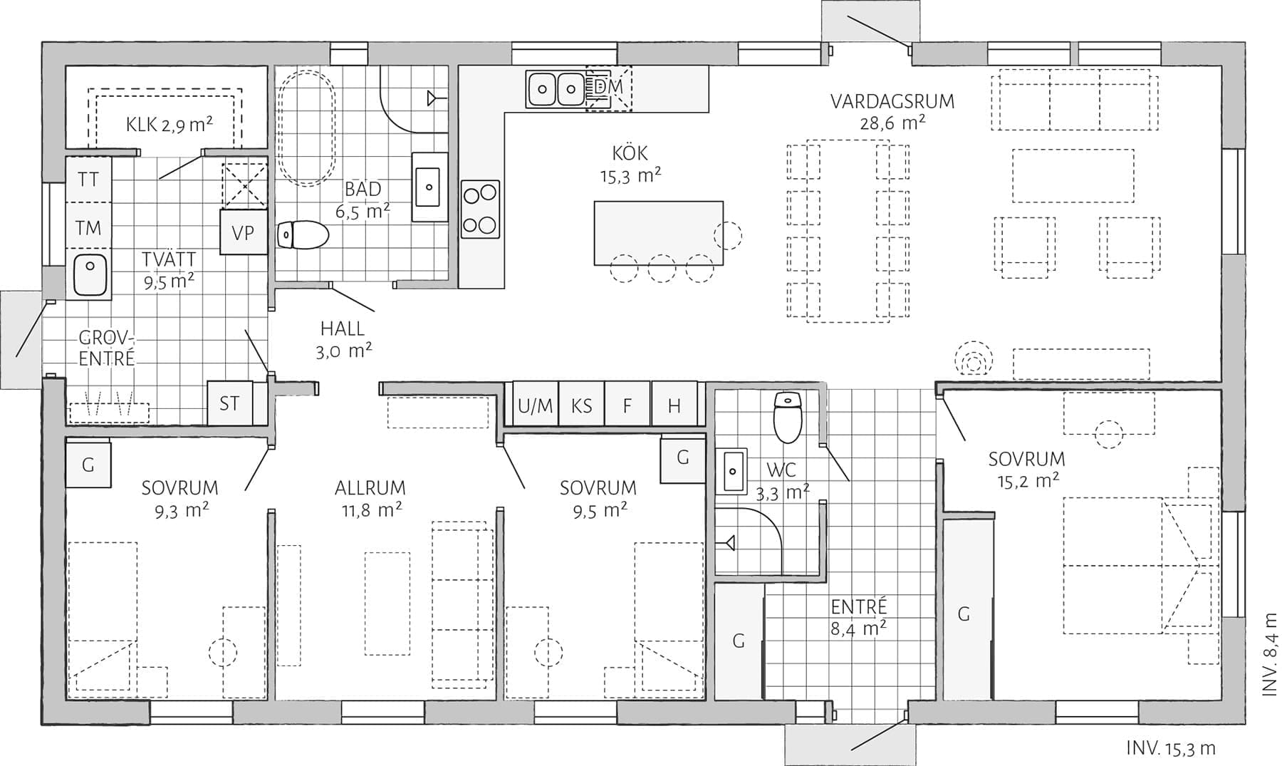
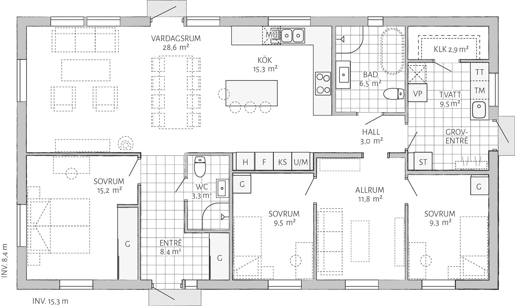
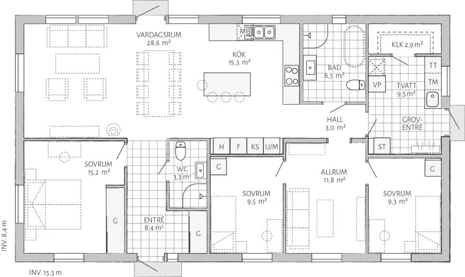
    Prio 129 Industriell

    Grundriss

    3-D-Modell

    Betrachten Sie Prio 129 Industriell von allen Seiten

    Frida Axhed

    Was sich der Architekt bei Prio 129 Industriell gedacht hat

    Frida Axhed

    Einladendes Haus auf einer Ebene

    Vom Eingang aus haben Sie einen Blick ins Wohnzimmer und auf die Rückseite des Hauses. Der offene Bereich in der Küche und im Wohnzimmer gibt Ihnen die Freiheit, sowohl einen Esstisch als auch eine Sofagarnitur unterzubringen. Dass die Gemeinschaftsräume bei Prio 129 Industriell nebeneinander an der Rückseite des Hauses platziert sind, ist kein Zufall. So gelangen Sie schnell von der Küche zur Terrasse, ohne das ganze Haus durchqueren zu müssen.

    Die beiden Schlafzimmer und das Wohnzimmer bilden eine separate Einheit im Haus, die perfekt als Kinderzimmer mit gemeinsamem Bereich genutzt werden kann. Oder warum nicht als eigener Gästebereich, Büro oder Atelier? Die Möglichkeiten sind vielfältig!

    Der Flur und das Elternschlafzimmer verfügen über praktische Schiebetürenschränke, die viel Platz für Kleidung bieten. Das Haus hat auch einen großen Hauswirtschaftsraum mit separatem Eingang. Hier gibt es viel Platz für die ganze Familie, um ihre Outdoor-Kleidung abzulegen.

    Aber das Haus endet nicht hier. Hinter dem Hauswirtschaftsraum erwartet Sie ein großzügiger begehbarer Kleiderschrank. Er bietet Platz für die Sportausrüstung und andere sperrige Dinge, die Sie aus dem Weg und aus dem Blickfeld haben möchten. Ein häufig unterschätzter Raum, der der ganzen Familie gute Dienste leistet.

    Fotos der Häuser von Kunden

    Lassen Sie sich von Häusern Prio 129 Industriell unserer Kunden inspirieren

    Taggen Sie Ihre Bilder mit @eksjohus oder mit #mittEksjöhus, wenn Sie Lust haben, als eine unserer Inspirationsquellen ausgewählt zu werden.

    Wird geladen …

    Individuelle Gestaltung

    Finden Sie heraus, welches Haus und welcher Stil zu Ihnen passen

    Der kürzeste Weg zu Ihrem Traumhaus: Wählen Sie einen Haustyp oder eine Stilrichtung aus und schauen Sie sich dann an, welche Optionen es innerhalb der gewählten Kategorie gibt.

    Wird geladen …

    Kontaktiere mich

    Bitte nehmen Sie Kontakt mit mir auf

    Füllen Sie das Formular aus und ich werde antworten, sobald ich die Gelegenheit dazu habe. Wenn Sie lieber anrufen möchten, meine Nummer ist unten.

    Mit freundlichen Grüßen

      Tack för din förfrågan!

      Din fråga är skickad

      Inom kort kommer jag att ta kontakt med dig.