Prio

Über Prio 116 Traditionell

Prio 116 Traditionell - gemütliches und gut geplantes Einfamilienhaus im klassischen Stil

Mit Holzverzierungen, Sprossenfenstern und weißen Eckpfosten lässt Prio 116 Traditionell das schwedische Architekturerbe aufleben. Prio 116 ist das kleinste Haus der Prio-Serie, bietet jedoch alle Räume und Funktionen, die Sie auf begrenztem Raum benötigen. Hier werden das Wohnzimmer und die Küche zum Herzstück und Treffpunkt. Der offene Wohnbereich fungiert auch als organische Trennung zwischen dem Kinder- und Elternteil des Hauses.

Erklärung der technischen Daten

Alle angegebenen Abmessungen entsprechen den schwedischen Normen. Ihr Verkäufer informiert Sie darüber, was in Deutschland anders ist.

Nutzfläche

Dies ist die gesamte Fläche innerhalb der Außenwände in allen Geschossen. Zur Nutzfläche gehören auch Flächen zum Beispiel für Küchenschränke, Kleiderschränke und Warmwasserbereiter.

Grundfläche

Die Fläche, die das Haus auf dem Grundstück einnimmt. Dabei handelt es sich im Allgemeinen um eine Projektion des Hauses von oben. Balkone werden mit zur Grundfläche gerechnet, wenn deren Unterseite weniger als 3 m weit auf das Grundstück ragt. Die Grundfläche ist ein wichtiger Wert, der angibt, in welchem Umfang ein Grundstück bebaut werden darf. Dieser Wert ist dem Bebauungsplan zu entnehmen.

Gebäudehöhe

Die Höhe von der mittleren Ebene des Grundstückes bis zum Schnittpunkt zwischen der Fassadenfläche und einer Ebene, die mit einer Neigung von 45° zum Gebäude hin das Dach des Gebäudes berührt. Meist stellt die Fassade zur Straßenseite hin die Berechnungsgrundlage dar. Die Gebäudehöhe ist ein schwieriges Konzept; sprechen Sie im Falle von Unklarheiten gern mit unseren Verkäufern.

Zimmeranzahl

Damit ein Raum als „Zimmer“ zählt, muss er bewohnbar sein und dazu eine Fläche von mindestens 7 m² und ein Fenster haben. Bad und Waschküche gelten in einem Haus nicht als Zimmer, und die Küche wird stets separat genannt.

Kontaktieren Sie uns

Beratungsgespräch vereinbaren

Ein erster Schritt auf dem Weg zum neuen Haus kann ein Gespräch mit einem Eksjöhus-Vertriebspartner sein. Sie können einen Beratungstermin unabhängig davon vereinbaren, ob Sie bereits ein bebaubares Grundstück haben oder nicht. Unsere Beratung ist kostenlos und unverbindlich. Füllen Sie das Formular aus und wir melden uns baldmöglichst bei Ihnen.

Kontaktieren Sie uns

Preisanfrage Prio 116 Traditionell

Ein Haus zu einem Festpreis anzubieten ist schwierig. Die Gesamtkosten sind davon abhängig, wo Sie bauen wollen und wie das Grundstück aussieht. Auch die Preise von Handwerkern und Bauunternehmen unterscheiden sich von Region zu Region. Wenn Sie das Formular ausfüllen, können wir Ihnen zumindest eine preisliche Größenordnung für ein Haus nach Ihren Wünschen nennen.

Modell PRIO 116 traditionell, Frontansicht

Prio 116 Traditionell

Nutzfläche
116 m²
Geschosse
1
Zimmeranzahl
5 Zimmer und Küche
Serien
Prio

    Haben Sie bereits ein Grundstück?

    Wir verwenden Ihre Daten ausschließlich gemäß unserer Datenschutzerklärung.

    Vielen Dank für Ihre Anfrage!

    Ihre Preisanfrage wurde versendet.

    Das nächstgelegene Eksjöhus-Büro wird sich in Kürze mit Ihnen in Verbindung setzen.

    Haben Sie schon unseren inspirierenden Katalog bestellt?

    Katalog anfordern

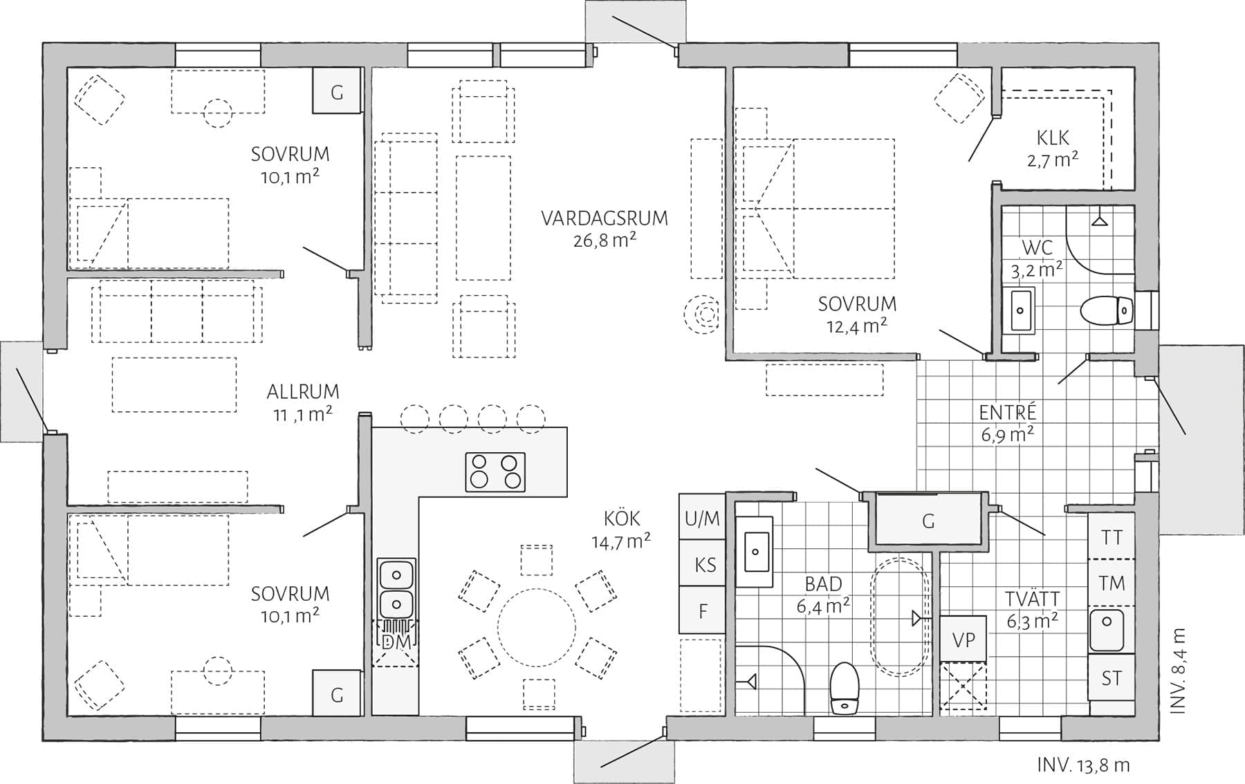
    Prio 116 Traditionell

    Grundriss

    3-D-Modell

    Betrachten Sie Prio 116 Traditionell von allen Seiten

    Anund Petri

    Was sich der Architekt bei Prio 116 Traditionell gedacht hat

    Anund Petri

    Einfach anklopfen und eintreten

    Wenn man den Flur betritt, sieht man, wie sich das Haus zur Kücheninsel hin öffnet. Das Wohnzimmer und die Küche sind das Herzstück des Hauses und der Treffpunkt der Familie, teilen aber auch auf natürliche Weise die Bereiche der Kinder und der Eltern im Haus. Neu in der Küche ist, dass wir die hohen Schränke zusammengelegt und größere Arbeitsflächen geschaffen haben. Das erleichtert das Kochen, das Aufbewahren von Dingen und das gesellige Beisammensein in der Küche.

    Das Elternschlafzimmer hat einen begehbaren Kleiderschrank direkt daneben, so dass man leicht Struktur für Kleidung und Schuhe schaffen kann. Der Kleiderschrank ist auch der perfekte Ort, um heimlich Weihnachtsgeschenke aufzubewahren. Die Toilette in der Eingangshalle hat jetzt auch eine Dusche. Im Kinder- oder Jugendbereich gibt es ein Wohnzimmer mit Schlafsofa für Übernachtungsgäste.

    Die bodentiefen Fenster und Glastüren lassen viel Licht herein und ermöglichen Terrassen in mehrere Richtungen. Und dank der langgestreckten Form mit dem Eingang am Giebel lässt sich das Haus problemlos auf einem schmalen Grundstück platzieren.

    Fotos der Häuser von Kunden

    Lassen Sie sich von Häusern Prio 116 Traditionell unserer Kunden inspirieren

    Taggen Sie Ihre Bilder mit @eksjohus oder mit #mittEksjöhus, wenn Sie Lust haben, als eine unserer Inspirationsquellen ausgewählt zu werden.

    Wird geladen …

    Individuelle Gestaltung

    Finden Sie heraus, welches Haus und welcher Stil zu Ihnen passen

    Der kürzeste Weg zu Ihrem Traumhaus: Wählen Sie einen Haustyp oder eine Stilrichtung aus und schauen Sie sich dann an, welche Optionen es innerhalb der gewählten Kategorie gibt.

    Wird geladen …

    Kontaktiere mich

    Bitte nehmen Sie Kontakt mit mir auf

    Füllen Sie das Formular aus und ich werde antworten, sobald ich die Gelegenheit dazu habe. Wenn Sie lieber anrufen möchten, meine Nummer ist unten.

    Mit freundlichen Grüßen

      Tack för din förfrågan!

      Din fråga är skickad

      Inom kort kommer jag att ta kontakt med dig.