Flex

Über Ljunghem Industriell

Stilvolles zweigeschossiges Haus mit Carport

Die weitläufige Terrasse verleiht Ljunghem Industriell seinen besonderen Charme. Entdecke ein stilvolles Zuhause für die Stadtfamilie, die geräumig und stadtnah wohnen möchte, dabei jedoch keine Kompromisse bei Platz und sozialen Interaktionen eingehen will. Ljunghem Industriell bietet ausreichend Raum für Familientreffen, Teenager und Hobbys. Zu den Standardmerkmalen gehören großzügige Gemeinschaftsräume, vier Schlafzimmer sowie zusätzlicher Stauraum. Die Terrasse, die sowohl eine wunderschöne Aussicht als auch viel Privatsphäre bietet, rundet das Gesamtbild perfekt ab.

Erklärung der technischen Daten

Alle angegebenen Abmessungen entsprechen den schwedischen Normen. Ihr Verkäufer informiert Sie darüber, was in Deutschland anders ist.

Nutzfläche

Dies ist die gesamte Fläche innerhalb der Außenwände in allen Geschossen. Zur Nutzfläche gehören auch Flächen zum Beispiel für Küchenschränke, Kleiderschränke und Warmwasserbereiter.

Grundfläche

Die Fläche, die das Haus auf dem Grundstück einnimmt. Dabei handelt es sich im Allgemeinen um eine Projektion des Hauses von oben. Balkone werden mit zur Grundfläche gerechnet, wenn deren Unterseite weniger als 3 m weit auf das Grundstück ragt. Die Grundfläche ist ein wichtiger Wert, der angibt, in welchem Umfang ein Grundstück bebaut werden darf. Dieser Wert ist dem Bebauungsplan zu entnehmen.

Gebäudehöhe

Die Höhe von der mittleren Ebene des Grundstückes bis zum Schnittpunkt zwischen der Fassadenfläche und einer Ebene, die mit einer Neigung von 45° zum Gebäude hin das Dach des Gebäudes berührt. Meist stellt die Fassade zur Straßenseite hin die Berechnungsgrundlage dar. Die Gebäudehöhe ist ein schwieriges Konzept; sprechen Sie im Falle von Unklarheiten gern mit unseren Verkäufern.

Zimmeranzahl

Damit ein Raum als „Zimmer“ zählt, muss er bewohnbar sein und dazu eine Fläche von mindestens 7 m² und ein Fenster haben. Bad und Waschküche gelten in einem Haus nicht als Zimmer, und die Küche wird stets separat genannt.

Kontaktieren Sie uns

Beratungsgespräch vereinbaren

Ein erster Schritt auf dem Weg zum neuen Haus kann ein Gespräch mit einem Eksjöhus-Vertriebspartner sein. Sie können einen Beratungstermin unabhängig davon vereinbaren, ob Sie bereits ein bebaubares Grundstück haben oder nicht. Unsere Beratung ist kostenlos und unverbindlich. Füllen Sie das Formular aus und wir melden uns baldmöglichst bei Ihnen.

Kontaktieren Sie uns

Preisanfrage Ljunghem Industriell

Ein Haus zu einem Festpreis anzubieten ist schwierig. Die Gesamtkosten sind davon abhängig, wo Sie bauen wollen und wie das Grundstück aussieht. Auch die Preise von Handwerkern und Bauunternehmen unterscheiden sich von Region zu Region. Wenn Sie das Formular ausfüllen, können wir Ihnen zumindest eine preisliche Größenordnung für ein Haus nach Ihren Wünschen nennen.

Ljunghem Industriell

Nutzfläche
158 m²
Geschosse
2
Zimmeranzahl
6 Zimmer und Küche
Serien
Flex

    Haben Sie bereits ein Grundstück?

    Wir verwenden Ihre Daten ausschließlich gemäß unserer Datenschutzerklärung.

    Vielen Dank für Ihre Anfrage!

    Ihre Preisanfrage wurde versendet.

    Das nächstgelegene Eksjöhus-Büro wird sich in Kürze mit Ihnen in Verbindung setzen.

    Haben Sie schon unseren inspirierenden Katalog bestellt?

    Katalog anfordern

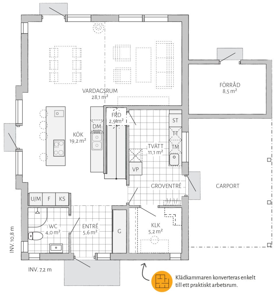
    Ljunghem Industriell

    Grundriss

    Linda Vennberg

    Was sich der Architekt bei Ljunghem Industriell gedacht hat

    Ljunghem kombiniert praktische Lösungen für große Familien mit großzügigen Räumen, die das Haus zu einem natürlichen Treffpunkt für Freunde und Familie machen.

    Individuelle Gestaltung

    Finden Sie heraus, welches Haus und welcher Stil zu Ihnen passen

    Der kürzeste Weg zu Ihrem Traumhaus: Wählen Sie einen Haustyp oder eine Stilrichtung aus und schauen Sie sich dann an, welche Optionen es innerhalb der gewählten Kategorie gibt.

    Wird geladen …

    Kontaktiere mich

    Bitte nehmen Sie Kontakt mit mir auf

    Füllen Sie das Formular aus und ich werde antworten, sobald ich die Gelegenheit dazu habe. Wenn Sie lieber anrufen möchten, meine Nummer ist unten.

    Mit freundlichen Grüßen

      Tack för din förfrågan!

      Din fråga är skickad

      Inom kort kommer jag att ta kontakt med dig.