Über Larvik

Larvik

Ein gut geplantes eingeschossiges Haus das sich vom Äußeren her abhebt. Das Pultdach verleiht dem Haus Charakter und die Formsprache wirkt modern. Die Fassade zum Garten, mit ihrem spannenden Versatz im Grundriss, wird stilvoll von hohen Fensterpartien durchbrochen und trägt zu einem interessanten und gleichzeitig verspielten Eindruck bei.

Die zu einem Gebäudekomplex geplanten Baukörper sind zweifellos etwas ganz Besonderes und bieten, aufgrund unregelmässiger Anordnung, viele Möglickeiten der Terrassengestaltung.

Erklärung der technischen Daten

Alle angegebenen Abmessungen entsprechen den schwedischen Normen. Ihr Verkäufer informiert Sie darüber, was in Deutschland anders ist.

Nutzfläche

Dies ist die gesamte Fläche innerhalb der Außenwände in allen Geschossen. Zur Nutzfläche gehören auch Flächen zum Beispiel für Küchenschränke, Kleiderschränke und Warmwasserbereiter.

Grundfläche

Die Fläche, die das Haus auf dem Grundstück einnimmt. Dabei handelt es sich im Allgemeinen um eine Projektion des Hauses von oben. Balkone werden mit zur Grundfläche gerechnet, wenn deren Unterseite weniger als 3 m weit auf das Grundstück ragt. Die Grundfläche ist ein wichtiger Wert, der angibt, in welchem Umfang ein Grundstück bebaut werden darf. Dieser Wert ist dem Bebauungsplan zu entnehmen.

Gebäudehöhe

Die Höhe von der mittleren Ebene des Grundstückes bis zum Schnittpunkt zwischen der Fassadenfläche und einer Ebene, die mit einer Neigung von 45° zum Gebäude hin das Dach des Gebäudes berührt. Meist stellt die Fassade zur Straßenseite hin die Berechnungsgrundlage dar. Die Gebäudehöhe ist ein schwieriges Konzept; sprechen Sie im Falle von Unklarheiten gern mit unseren Verkäufern.

Zimmeranzahl

Damit ein Raum als „Zimmer“ zählt, muss er bewohnbar sein und dazu eine Fläche von mindestens 7 m² und ein Fenster haben. Bad und Waschküche gelten in einem Haus nicht als Zimmer, und die Küche wird stets separat genannt.

Kontaktieren Sie uns

Beratungsgespräch vereinbaren

Ein erster Schritt auf dem Weg zum neuen Haus kann ein Gespräch mit einem Eksjöhus-Vertriebspartner sein. Sie können einen Beratungstermin unabhängig davon vereinbaren, ob Sie bereits ein bebaubares Grundstück haben oder nicht. Unsere Beratung ist kostenlos und unverbindlich. Füllen Sie das Formular aus und wir melden uns baldmöglichst bei Ihnen.

Kontaktieren Sie uns

Preisanfrage Larvik

Ein Haus zu einem Festpreis anzubieten ist schwierig. Die Gesamtkosten sind davon abhängig, wo Sie bauen wollen und wie das Grundstück aussieht. Auch die Preise von Handwerkern und Bauunternehmen unterscheiden sich von Region zu Region. Wenn Sie das Formular ausfüllen, können wir Ihnen zumindest eine preisliche Größenordnung für ein Haus nach Ihren Wünschen nennen.

Välplanerat enplanshus med pulpettak

Larvik

Nutzfläche
140 m²
Geschosse
1
Zimmeranzahl
5 Zimmer und Küche

    Haben Sie bereits ein Grundstück?

    Wir verwenden Ihre Daten ausschließlich gemäß unserer Datenschutzerklärung.

    Vielen Dank für Ihre Anfrage!

    Ihre Preisanfrage wurde versendet.

    Das nächstgelegene Eksjöhus-Büro wird sich in Kürze mit Ihnen in Verbindung setzen.

    Haben Sie schon unseren inspirierenden Katalog bestellt?

    Katalog anfordern

    Larvik

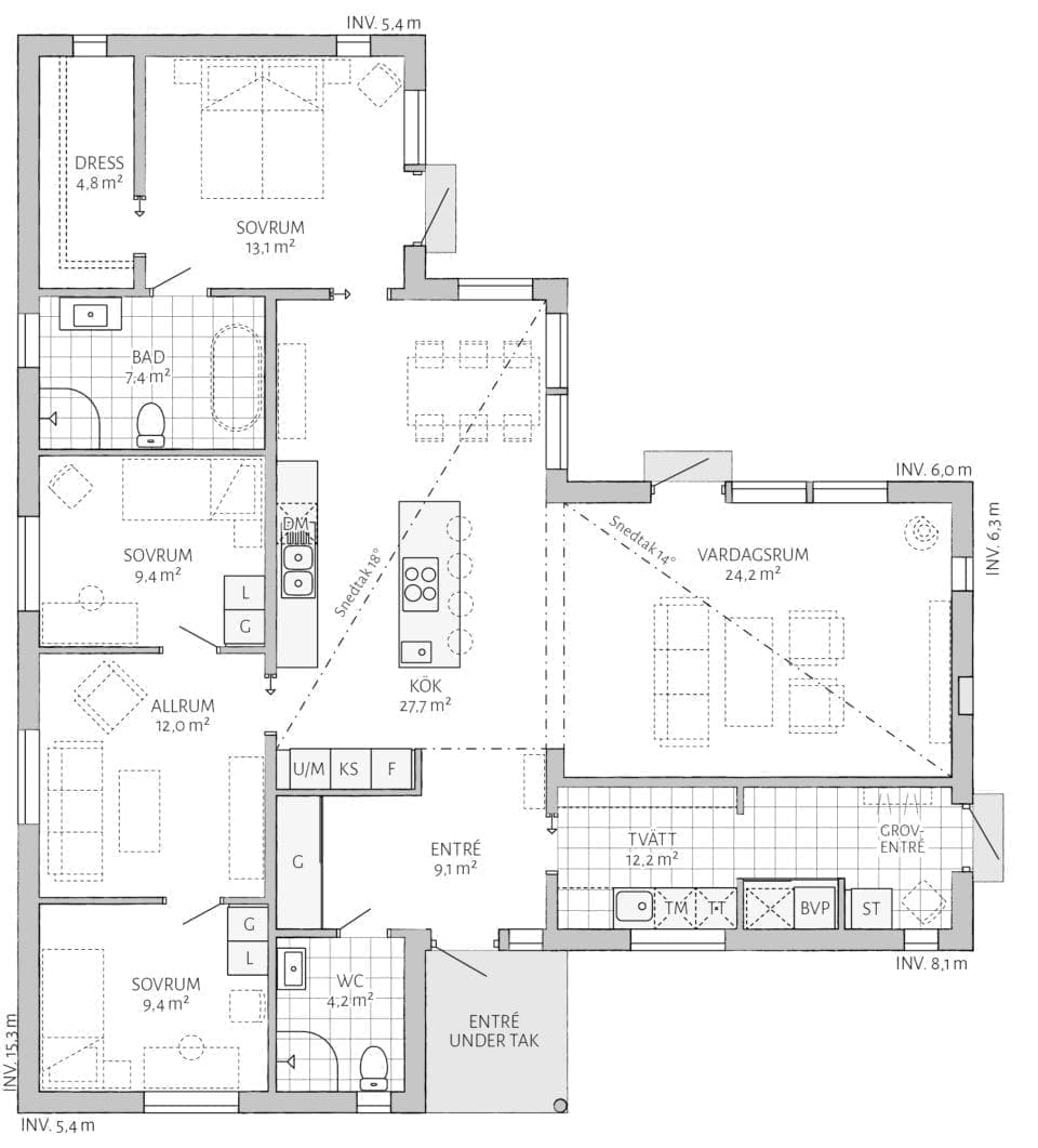
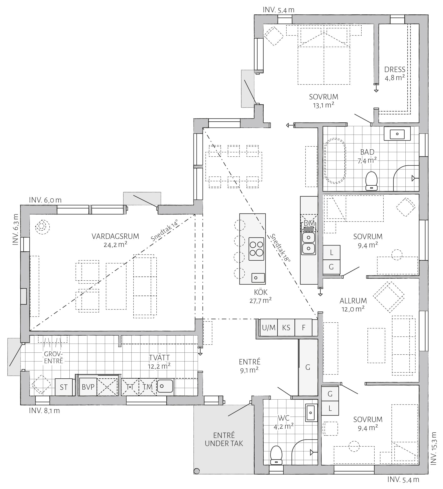
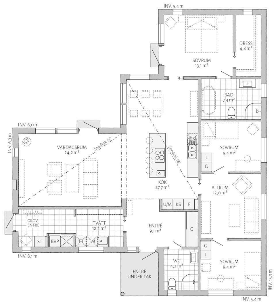
    Grundriss

    3-D-Modell

    Betrachten Sie Larvik von allen Seiten

    Sandra Hormez

    Was sich der Architekt bei Larvik gedacht hat

    Sandra Hormez

    Ein 140 Quadratmeter großes eingeschossiges Haus mit fünf Zimmern und Küche. Es hat ein geräumiges Wohnzimmer mit Pfettendach und großzügig bemessene Fenster. Von der of fenen Küche mit Essbereich, kann durch die zentrale Anordung jeder Raum des Hauses erreicht werden. Der Hauswirtschaftsraum mit großem begehbarem Schrank beherbergt dier Technik und bietet den Bewohnern des Hauses enormen Stauraum. Der Grundriss von Larvik kommt ohne Flure aus und wird durch die bodentiefen Fenster lichtdurchflutet. Die Küche bildet den zentralen Punkt des Hauses und wird von jedem Raum aus gut erreicht. Die Schlafräume bilden zwei von einander getrennte Trakte, mit einem eigenen Badezimmer für das Elternschlafzimmer. Die beiden Kinderzimmer sind durch einen Gemeinschaf tsraum miteinander verbunden, der durch eine Schiebetür zur Küche den Kindertrakt begrenzt

    Individuelle Gestaltung

    Finden Sie heraus, welches Haus und welcher Stil zu Ihnen passen

    Der kürzeste Weg zu Ihrem Traumhaus: Wählen Sie einen Haustyp oder eine Stilrichtung aus und schauen Sie sich dann an, welche Optionen es innerhalb der gewählten Kategorie gibt.

    Wird geladen …

    Kontaktiere mich

    Bitte nehmen Sie Kontakt mit mir auf

    Füllen Sie das Formular aus und ich werde antworten, sobald ich die Gelegenheit dazu habe. Wenn Sie lieber anrufen möchten, meine Nummer ist unten.

    Mit freundlichen Grüßen

      Tack för din förfrågan!

      Din fråga är skickad

      Inom kort kommer jag att ta kontakt med dig.