Über Ekenäs

Ekenäs

Ekenäs ist ein Haus für alle, die die Vergangenheit lebendig halten wollen. Ein typisches Landhaus, wie es im späten 18. Jahrhundert häufig gebaut wurde. Giebelkreuz, Sprossenfenster, Bodendeckelschalung und zahlreiche Verzierungen am Balkon und um die Fenster sind Merkmale dieser Epoche. Ein gelungener Entwurf, geplant für Liebhaber der schwedischen Architektur.

Erklärung der technischen Daten

Alle angegebenen Abmessungen entsprechen den schwedischen Normen. Ihr Verkäufer informiert Sie darüber, was in Deutschland anders ist.

Nutzfläche

Dies ist die gesamte Fläche innerhalb der Außenwände in allen Geschossen. Zur Nutzfläche gehören auch Flächen zum Beispiel für Küchenschränke, Kleiderschränke und Warmwasserbereiter.

Grundfläche

Die Fläche, die das Haus auf dem Grundstück einnimmt. Dabei handelt es sich im Allgemeinen um eine Projektion des Hauses von oben. Balkone werden mit zur Grundfläche gerechnet, wenn deren Unterseite weniger als 3 m weit auf das Grundstück ragt. Die Grundfläche ist ein wichtiger Wert, der angibt, in welchem Umfang ein Grundstück bebaut werden darf. Dieser Wert ist dem Bebauungsplan zu entnehmen.

Gebäudehöhe

Die Höhe von der mittleren Ebene des Grundstückes bis zum Schnittpunkt zwischen der Fassadenfläche und einer Ebene, die mit einer Neigung von 45° zum Gebäude hin das Dach des Gebäudes berührt. Meist stellt die Fassade zur Straßenseite hin die Berechnungsgrundlage dar. Die Gebäudehöhe ist ein schwieriges Konzept; sprechen Sie im Falle von Unklarheiten gern mit unseren Verkäufern.

Zimmeranzahl

Damit ein Raum als „Zimmer“ zählt, muss er bewohnbar sein und dazu eine Fläche von mindestens 7 m² und ein Fenster haben. Bad und Waschküche gelten in einem Haus nicht als Zimmer, und die Küche wird stets separat genannt.

Kontaktieren Sie uns

Beratungsgespräch vereinbaren

Ein erster Schritt auf dem Weg zum neuen Haus kann ein Gespräch mit einem Eksjöhus-Vertriebspartner sein. Sie können einen Beratungstermin unabhängig davon vereinbaren, ob Sie bereits ein bebaubares Grundstück haben oder nicht. Unsere Beratung ist kostenlos und unverbindlich. Füllen Sie das Formular aus und wir melden uns baldmöglichst bei Ihnen.

Kontaktieren Sie uns

Preisanfrage Ekenäs

Ein Haus zu einem Festpreis anzubieten ist schwierig. Die Gesamtkosten sind davon abhängig, wo Sie bauen wollen und wie das Grundstück aussieht. Auch die Preise von Handwerkern und Bauunternehmen unterscheiden sich von Region zu Region. Wenn Sie das Formular ausfüllen, können wir Ihnen zumindest eine preisliche Größenordnung für ein Haus nach Ihren Wünschen nennen.

Ekenäs

Nutzfläche
122 m²
Geschosse
1,5
Zimmeranzahl
4 Zimmer und Küche

    Haben Sie bereits ein Grundstück?

    Wir verwenden Ihre Daten ausschließlich gemäß unserer Datenschutzerklärung.

    Vielen Dank für Ihre Anfrage!

    Ihre Preisanfrage wurde versendet.

    Das nächstgelegene Eksjöhus-Büro wird sich in Kürze mit Ihnen in Verbindung setzen.

    Haben Sie schon unseren inspirierenden Katalog bestellt?

    Katalog anfordern

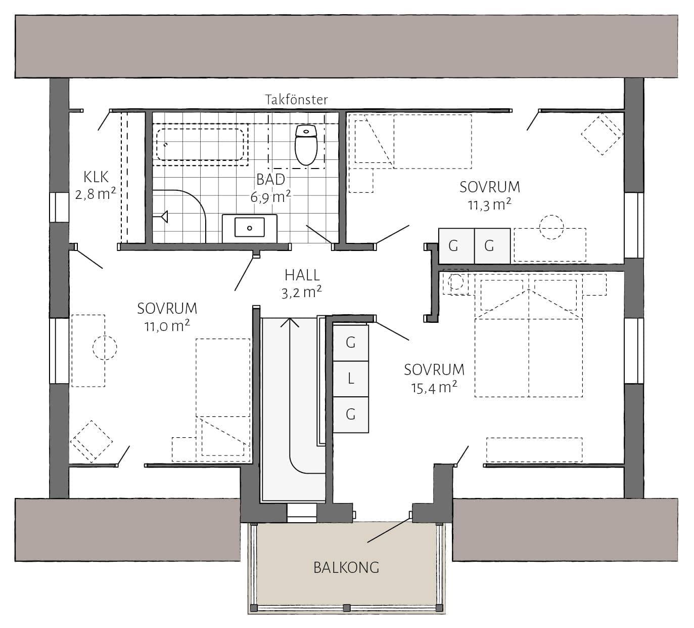
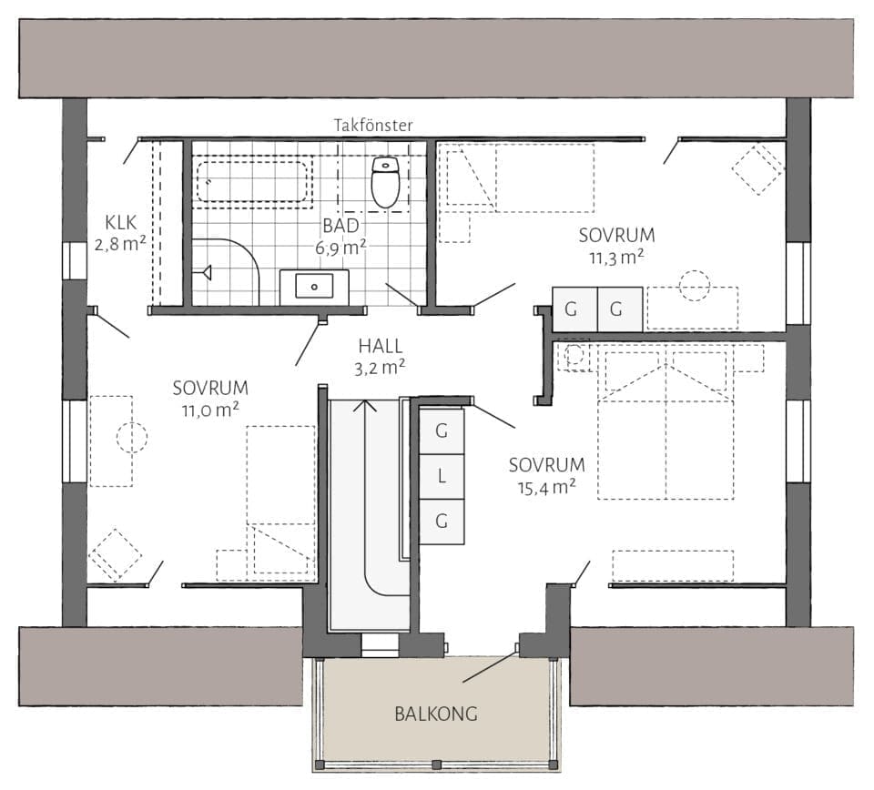
    Ekenäs

    Grundriss

    Anund Petri

    Was sich der Architekt bei Ekenäs gedacht hat

    Anund Petri

    Im Erdgeschoss befinden sich der Hauswirtschaf tsraum, ein Badezimmer, eine Küche und das sehr großzügige Wohnzimmer. Bodentiefe, doppelflügelige Terrassentüren sorgen für ausrechend Licht und ermöglichen den Zugang zu einer großen Terrasse. Diese geräumige Etage beherbergt drei Schlafzimmer, ein Bad und einen Abstellraum. Warme Sommertage kann man ungestört auf dem Balkon genießen.

    Individuelle Gestaltung

    Finden Sie heraus, welches Haus und welcher Stil zu Ihnen passen

    Der kürzeste Weg zu Ihrem Traumhaus: Wählen Sie einen Haustyp oder eine Stilrichtung aus und schauen Sie sich dann an, welche Optionen es innerhalb der gewählten Kategorie gibt.

    Wird geladen …

    Kontaktiere mich

    Bitte nehmen Sie Kontakt mit mir auf

    Füllen Sie das Formular aus und ich werde antworten, sobald ich die Gelegenheit dazu habe. Wenn Sie lieber anrufen möchten, meine Nummer ist unten.

    Mit freundlichen Grüßen

      Tack för din förfrågan!

      Din fråga är skickad

      Inom kort kommer jag att ta kontakt med dig.