Ein Pultdach gibt jedem Haus eine besondere Note. Die Asymmetrie verleiht dem Gebäude einen Anstrich moderner Extravaganz. In Verbindung mit dem typischen Look eines schwedischen Holzhauses wird daraus ein Haustyp, der in jede Umgebung passt. Ob am Stadtrand oder auf dem Land: ein Schwedenhaus mit Pultdach sticht hervor. Der neue Eksjöhus-Katalog, der in Kürze auch in Deutschland erscheint, hat mit Kaxholmen einen spannenden Neuzugang.
Highlight des Hauses: das versetzte Pultdach
Wurden Pultdächer lange Zeit nur bei Designhäusern eingesetzt, erfreut sich dieser Dachtyp immer größerer Beliebtheit. Anders als beim Pultdach mit nur einer geneigten Dachfläche kommt bei neueren Entwürfen eine zweite, vertikal versetzte und auf Wunsch auch flacher oder steiler geneigte Dachfläche dazu. So auch bei Kaxholmen: die dabei entstehende Pultdach-Versatzwand bietet die Möglichkeit, weitere Fenster einzuplanen.
”Wir haben viele Anfragen zu einem solchen Haustyp bekommen”, sagt Johan Nycroft, Chefarchitekt bei Eksjöhus. ”Immer mehr Interessenten wünschten sich ein Haus mit dem gewissen Extra, das ein bisschen auffällt.”
Kühner Entwurf für Design-Liebhaber
Herausgekommen ist ein kühner Entwurf: ein moderner, architektonisch ambitionierter Bungalow mit spannenden Innenräumen. Mit seinen Wurzeln im funktionalen Stil und der verspielten Formensprache ist Kaxholmen ein Schwedenhaus für Familien, die sich ein aufwändig gestaltetes Heim wünschen. Das Hausmodell Kaxholmen von Eksjöhus ist hell, modern und offen. Der ausgeklügelte Grundriss sorgt für ein großzügiges Raumgefühl und schafft eine luftige Atmosphäre. Und die extravaganten Fenster lassen viel natürliches Licht herein.
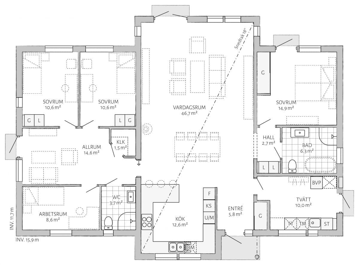
Fast 50 Quadratmeter großer Wohnbereich mit Essküche
Die harten Fakten: Kaxholmen von Eksjöhus hat eine Wohnfläche von 156 Quadratmetern, verteilt auf sechs Zimmer und eine intelligent konstruierte Küche. Der Eingangsbereich geht direkt über in den offenen Wohn- und Essbereich über, in dem auch die rund 13 Quadratmeter große Küche integriert ist. Dieser großzügig angelegte Raum bildet den Mittelpunkt des Hauses und ist sein Herzstück. Die offene Küche bietet Platz für eine Bartheke, an der es sich stilvoll frühstücken oder brunchen lässt.
Der Waschraum befindet sich neben dem Haupteingang und ist über einen eigenen Zugang erreichbar.
Zwei Schlafbereiche mit praktischen Lösungen
Zu beiden Seiten des großzügigen Gemeinschaftsraums befinden sich die Schlafbereiche. Der luftige Elternbereich hat ein eigenes Bad, das vom Schlafzimmer aus über einen kleinen Flur zu erreichen ist.
Der Kinderbereich besteht aus zwei Schlafzimmern und einem eigenen Wohnzimmer mit Kleiderkammer. Das geräumige Wohnzimmer bietet genügend Platz zum Spielen und Entspannen. Gegenüber den beiden Kinderzimmern liegen das Bad sowie ein Arbeitszimmer.

Moderne Architektur schafft viel Licht und Raum
Der Entwurf zu diesem modern-experimentellen Haustyp stammt von Pernilla Gustafsson. ”Das Highlight dieses Hauses ist der große Wohnbereich mit vielen Fenstern und hohen Decken”, erläutert Pernilla den gelungenen Grundriss. ”Das zweite, kleinere Wohnzimmer ist ein weiterer Bereich, auf den wir uns besonders konzentriert haben. Er lässt sich schön möblieren und ermöglicht einen seitlichen Lichteinfall. Das Wohnzimmer sollte nicht nur ein breiter Korridor sein, sondern auch einen Mehrwert für das Haus bieten.”
Wer mit seinem Haus ein Statement setzen und auffallen möchte, für den könnte Kaxholmen also genau das Richtige sein.
Tipp: Einen virtuellen Rundgang durch den lichtdurchfluteten Wohn- und Essbereich finden Sie hier.




