13 Häuser sind neu im Eksjöhus-Katalog 2021, der kürzlich in Deutschland erschienen ist. Einige davon haben wir Ihnen bereits vorgestellt. Askeryd ist ein etwas ungewöhnlicher Neuzugang und eine Reminiszenz an landwirtschaftliche Nutzbauten, kombiniert mit einer industriellen Note und einem Pfettendach.
Beeindruckendes Raumgefühl durch Weite und Höhe
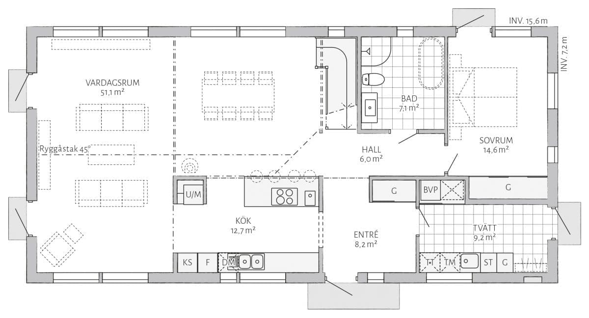
Das haus empfängt mit einem Eindruck von Weite und Offenheit. Das Erdgeschoss ist geprägt von einem 64 Quadratmeter großen luftigen Ensemble aus Küche, Essbereich und Wohnzimmer. Ein Pfettendach überspannt den großzügige Gemeinschaftsbereich. Das sorgt für eine beeindruckende Kathedraldecke.

Ein Haus für Stadt und Land
Dank seiner Geradlinigkeit passt das 1,5-stöckige Haus sowohl in eine ländliche Umgebung. Es könnte aber auch gut in ein Wohngebiet in der Stadt passen. Der Grundriss bietet auf 158 Quadratmetern viele durchdachte Details. Schlafzimmer, Wohnzimmer und Essbereich wurden von Eksjöhus-Architekt Johan Nycroft sorgfältig geplant. Jeder Quadratmeter wird genutzt. Dank großer, teils bodentiefer Fenster und Türen erhält das Erdgeschoss jede Menge natürlichen Lichteinfall.
Ein Highlight: die zentrale Treppe
Neben dem großzügigen Gemeinschaftsbereich befinden sich im Parterre außerdem ein Schlafzimmer, ein Bad, begehbare Kleiderschränke und der Hauswirtschaftsraum. Eine imposante zentrale Treppe führt zur darüberliegenden Galerie. Von der Balustrade aus ergibt sich ein Blick über den Wohn- und Essbereich.
Galerie mit Oberlicht
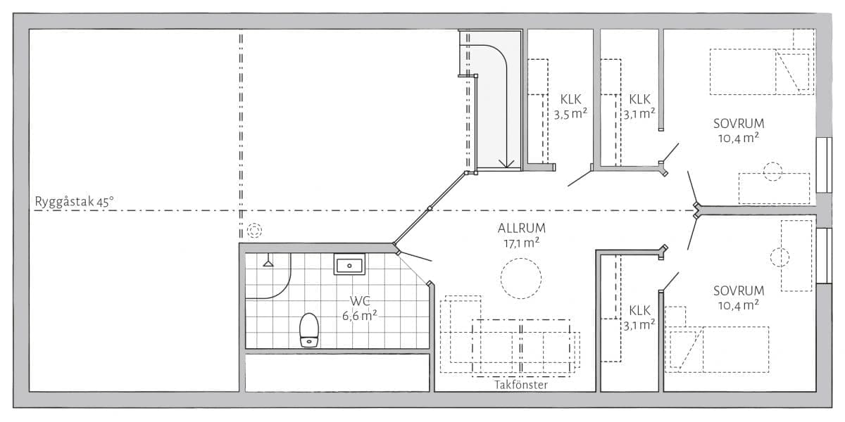
Im lichtdurchfluteten Obergeschoss sind ein 17 Quadratmeter großes Wohnzimmer, zwei Schlafräume und drei Abstellräume/Kleiderkammern untergebracht. Das luftige Wohnzimmer ist dank zweier Oberlichter sehr hell.
Auf dieser Etage befinden sich außerdem ein Duschbad und zwei Schlafzimmer mit separaten begehbaren Kleiderschränken. In einem Abstellraum finden alle Gegenstände Platz, die täglich gebraucht werden, aber den Blicken der Bewohner und der Gäste verborgen bleiben sollen.
Wie immer bei Eksjöhus gilt: die Einteilung ist veränderbar. Man kann sie ohne viel Aufwand den persönlichen Bedürfnissen der Bewohner anpassen. Wer möchte, kann beispielsweise zwei Ankleidezimmer zu einem Arbeitszimmer zusammenlegen.
ASKERYD: hoch, weit, offen
1,5-geschossiges Haus mit 5 Zimmern und Küche auf 158 m²
Das charmante 1,5-geschossige Haus ist von Scheunen, Neben- und Wirtschaftsgebäuden inspiriert, wie man sie in Skandinavien typischerweise findet. Mit wenig Dachüberstand und einfachen Details ist der Entwurf von Johan Nycroft ein harmonischer Mix aus ländlicher Note und industriellem Design. Damit macht das Haus in einer ländliche Umgebung und auch in der Stadt eine gute Figur.
Askeryd besticht vor allem durch einen Eindruck von Weite und Höhe. Der offene Grundriss und die hohe Decke im Wohn- und Essbereich vermitteln ein großzügiges Raumgefühl. Küche, Essbereich und Wohnzimmer bilden ein großes, offenes und lichtdurchflutetes Ensemble.




